按照《中华人民共和国城乡规划法》、《广东省城市控制性详细规划管理条例》以及政务公开有关规定的要求,我局将受理的建设项目规划审批申请事项公示如下:
申请单位:佰利达(汕头)实业有限公司
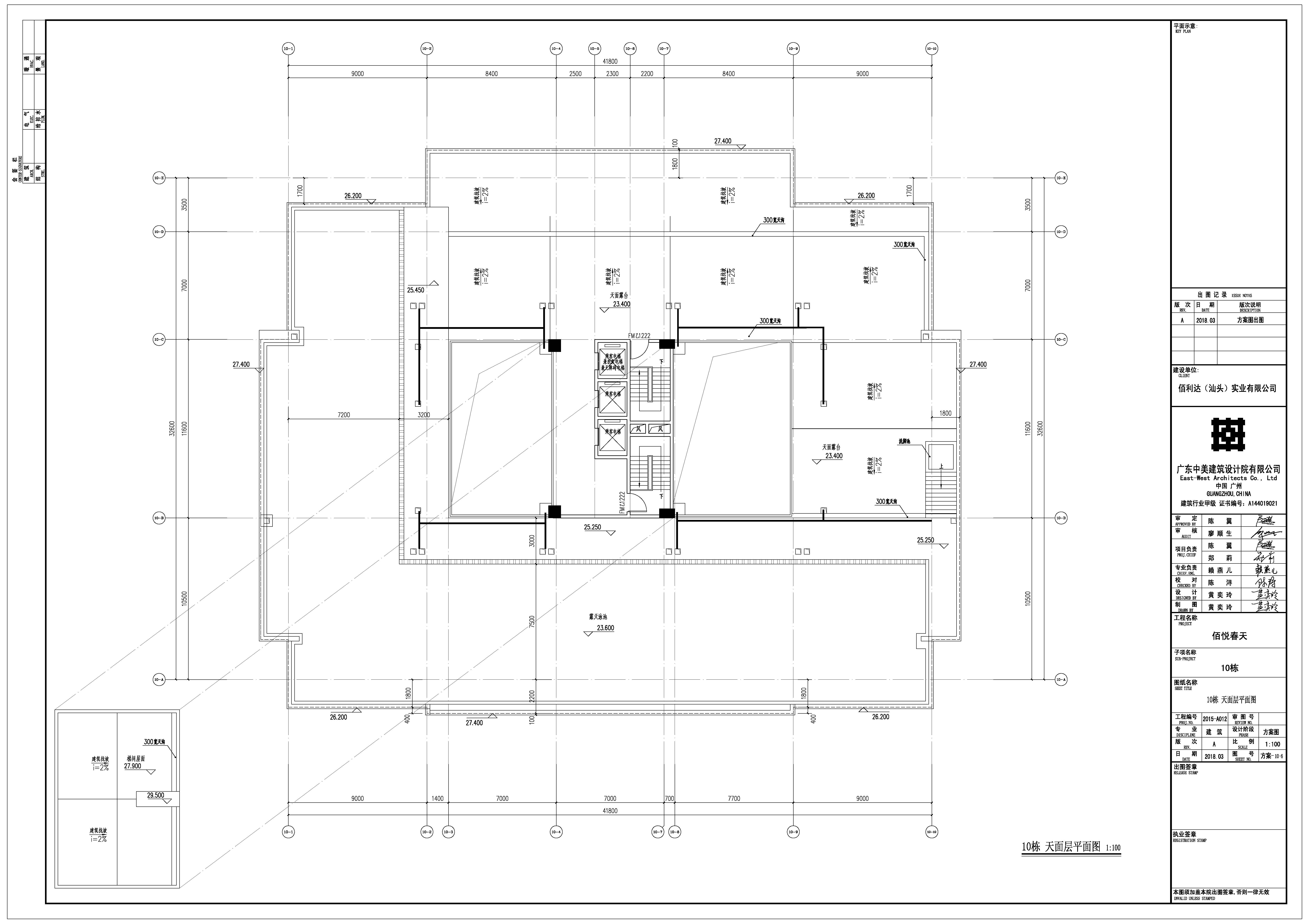
申请事项:建设工程规划许可变更
项目名称:“三旧” 改造项目
变更内容:10栋商务楼天面增加盖板,5、6、7栋调整首层风井
建设地址:长江路与黄山路交界东南侧
公示日期:2018年7月13日至7月22日
本项目有关图件可在汕头市城乡规划局公众网站(网址:http://www.stghj.gov.cn)查阅。有关上述项目的详细信息,可到汕头市城乡规划局龙湖分局(汕头市大北山路3号财审大楼304房)查询。
凡与此申请事项之间有重大利益关系的项目利害关系人,可在公示之日起十日内,凭身份证和产权证书等有效证件向本局书面提出申述(申述材料采用书面形式)。逾期未提出的,视为放弃上述权利。
特此公告。
查询电话: 88580106 监督电话: 88580109
相关附件:
相关附件:
扫一扫在手机打开当前页

中国政府网
无障碍版
您现在所在的位置 :

粤公网安备 44051102000227号