1144050077308738X5/2024-00301
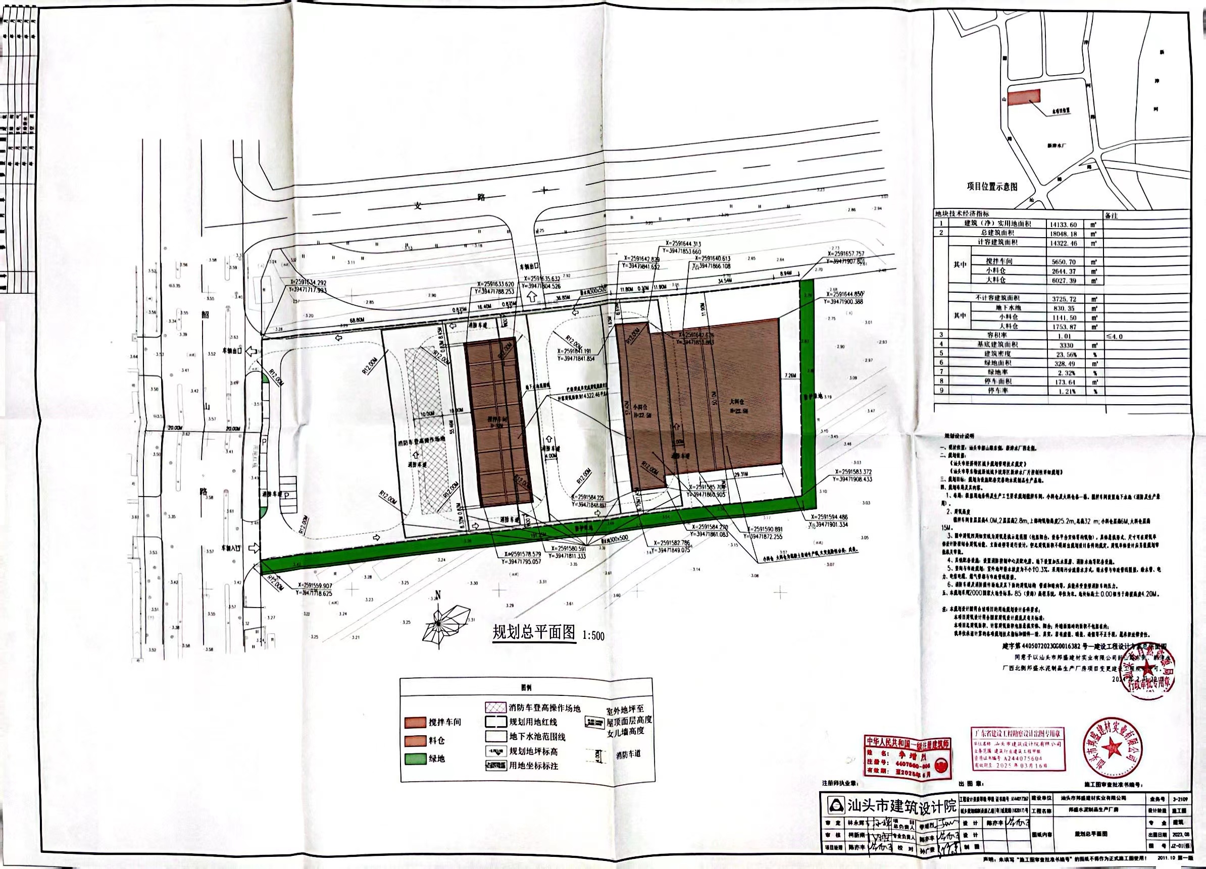
汕头市邦盛建材实业有限公司韶山路东侧、新津水厂西北侧地块邦盛水泥制品生产厂房项目变更《建设工程规划许可证》
建字第4405072023GG0016382号
汕头市邦盛建材实业有限公司韶山路东侧、新津水厂西北侧地块邦盛水泥制品生产厂房项目变更《建设工程规划许可证》
发布日期:2024-02-26 浏览次数:-
根据依照《中华人民共和国城乡规划法》第四十条规定,经审核,本建设工程符合城乡规划要求,颁发此证。
许可证号: | 建字第4405072023GG0016382号 |
发证机关: | 汕头市自然资源局 |
发证日期: | 2024年2月22日 |
建设单位(个人): | 汕头市邦盛建材实业有限公司 |
建设项目名称: | 邦盛水泥制品生产厂房项目变更 |
建设位置: | 韶山路东侧、新津水厂西北侧地块 |
变更内容: | 取消厂房建设 |

